Klein Rijsel, Leuven

PROJECTEN
 - Wonen
 - Stadsontwerp
 - Kantoor
00/00
Klein Rijsel, Leuven    collectief wonen

Vier deelopdrachten smelten hier samen tot 1 coherent geheel op de rand van zeer divers stedelijke condities: een Hoekgebouw, een Stadsbos, een Esplanade en de Langswoningen.
Het Hoekgebouw met zijn versteende omgeving is een begin- of eindpunt voor zowel de groene vesten vanuit de ontwikkeling van het station als de Tiensepoort. Het hoekgebouw vormt een plooi in de vesten en schermt de verdoken opgestelde langswoningen in het Stadbos af.
 
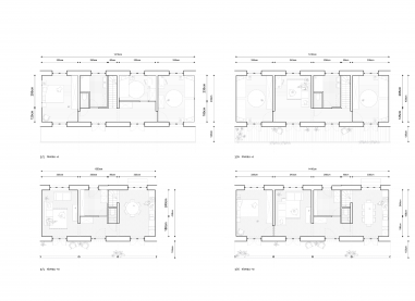
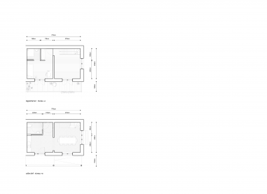
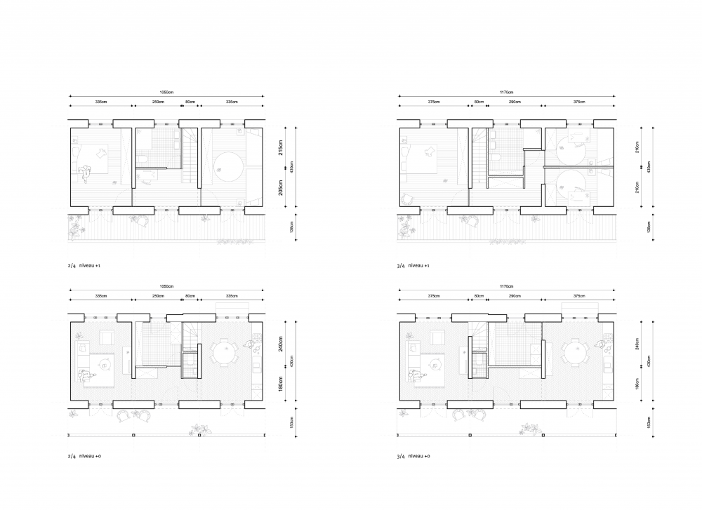
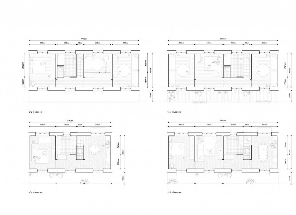
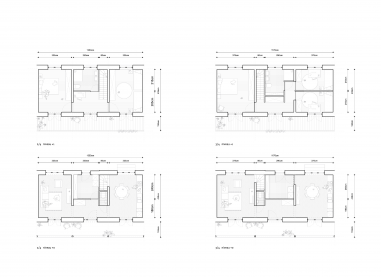
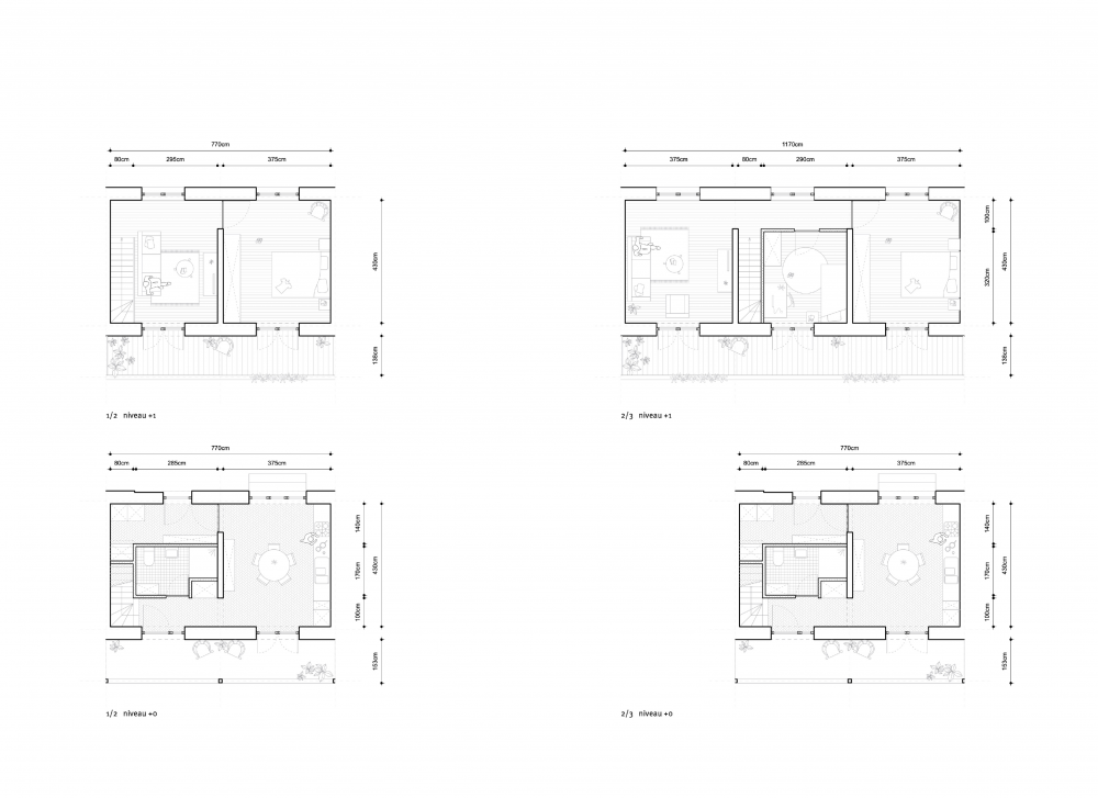
Het CLT woonproject presenteert zich als twee slanke woonvolumes aan een perron temidden van ‘un bois habité’.. Een wat wildere pluk- en voedseltuin die van het provinciehuis tot tegen de tuinen van de Tiensevest gaat. Dit landschap herbergt een weg, 2 woongebouwen en wat open plekken voor terassen, speelveld, ....
Het perron (vooraan het langswonen) van 45 cm hoog vormt de sokkel voor een terras, de pergola-structuur en het smalle woonlichaam. Het zweeft wat boven het maaiveld en vormt aan voor- en achterzijde een zitbank, een schap voor potplanten, een krijtvlak voor een hinkelspel, ...
Voor dit perron een ruig stuk groen als overgang met de straat. Het perron is een zitbank en schept intimiteit. Je wandelt er doorheen het ruiger stuk groen naar de kade, trapje op, onder de begroeide pergola zet je de boodschappen aan de kant en zoek je naar je sleutels. Dit perron is een verlengde van het wonen. Ritmische ‘portes fenêtres’ met luiken draaien er op open.
Elke woning zijn eigen voordeur, elke woning zijn eigen terras en tuinlob, een pergola en hun ‘bois habité’. Voor elkeen, groot of klein eenzelfde riante woonkwaliteit.

programma   9 nieuwbouw woningen, kopgebouw met kantoorfunctie
opdrachtgever   AG Stadsontwikkeling Leuven
ligging   Leuven
gunning   wedstrijd - laureaat
projectteam   P.Kint, P.Walraet, M.Leflot, P.Steens, J.Van Loven, C.Vanooteghem, M.Parsaei
adviseurs   Stramien, Paridaens Ingenieurs, RCR studiebureau, Daidalos Peutz
status   bouwaanvraag 2024