| Programma | verbouwing + interieur van een hoeve | |
| Opdrachtgever | dhr. en mevr. De Neve - Gazia | |
| Ligging | Turfstraat - Hoxem (Hoegaarden) | |
| Gunning | privéopdracht | |
| Projectteam | P.Kint, S.Philippe, P.Walraet, M. Rooman | |
| Status | ontwerp 2015 - oplevering 2016 |

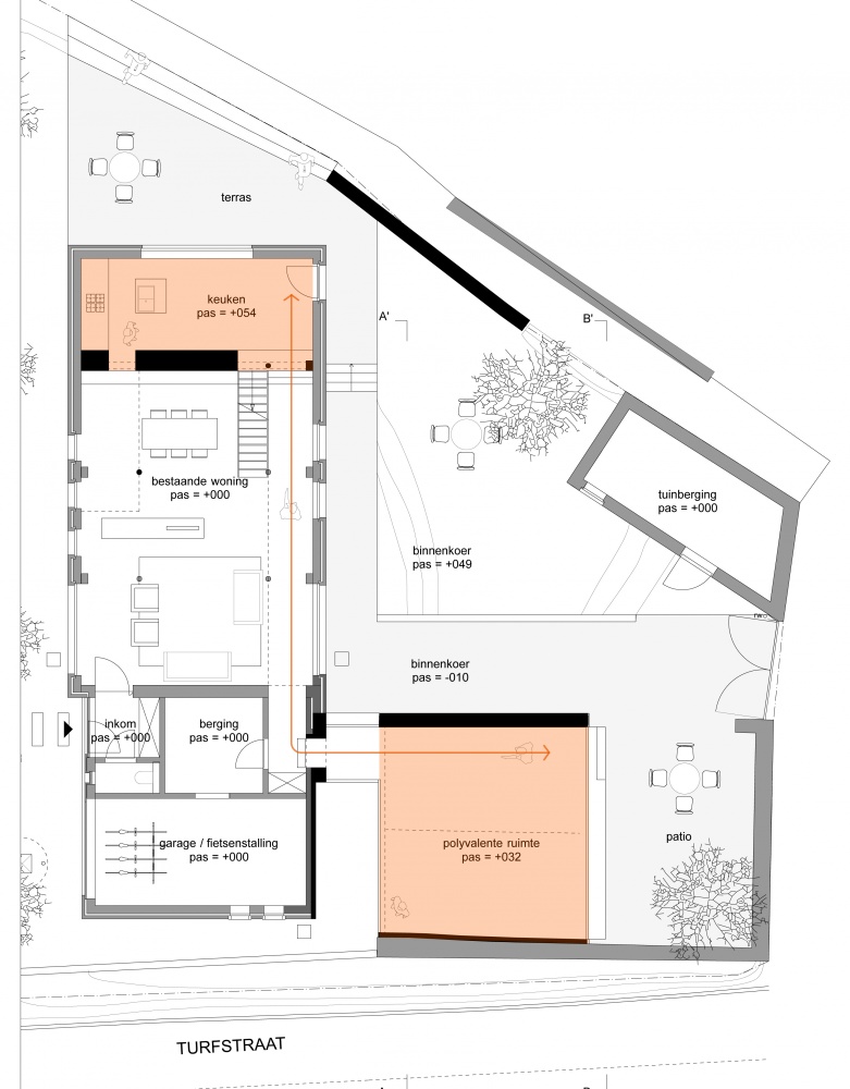
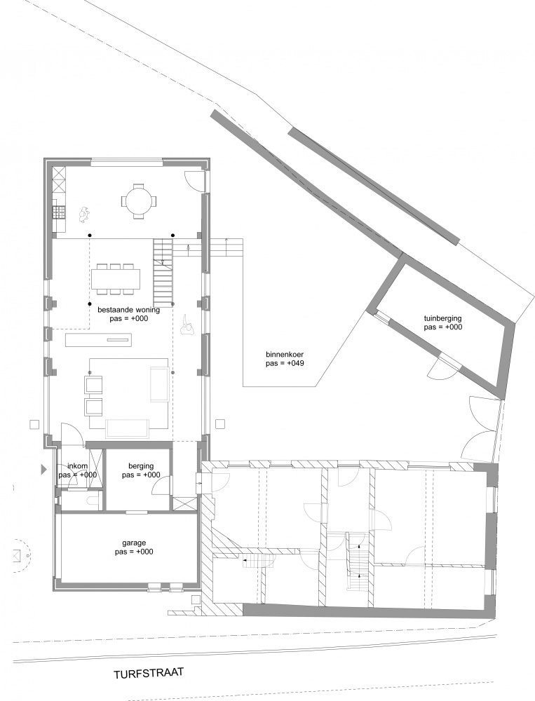
De hoeve is ingeplant in een landelijke omgeving. Naar de achterbuur toe glooit het terrein sterk omhoog en is er vanop het erf een uitgestrekt zicht over het landschap. Een eengezinswoning vormt samen met een oude woning een L-configuratie dat het erf verdeelt in twee buitenruimtes: een tuin in het oosten en een ingesloten binnenkoer in het zuiden.
De oude woning wordt verbouwd tot een polyvalente ruimte. Deze woning bepaalt omwille van haar ligging en materialiteit in kalkzandsteen sterk het straatbeeld. Om dit beeld te bewaren worden de straatgevels behouden. Eén van de bewaarde straatgevels doet dienst als tuinmuur van een patio naast de polyvalente ruimte.
De nieuwbouw wordt losgetrokken van de bestaande woning zodat het landschap tussen de twee volumes doorloopt. De twee volumes zijn met elkaar verbonden door een transparante gang waardoor interessante zichtrelaties tussen straat en binnenkoer ontstaan.
| Programma | verbouwing + interieur van een hoeve | |
| Opdrachtgever | dhr. en mevr. De Neve - Gazia | |
| Ligging | Turfstraat - Hoxem (Hoegaarden) | |
| Gunning | privéopdracht | |
| Projectteam | P.Kint, S.Philippe, P.Walraet, M. Rooman | |
| Status | ontwerp 2015 - oplevering 2016 |