Solveld III

PROJECTEN
 - Wonen
00/00
Solveld III    collectief wonen

De gebouwen spelen in op de schaal van de wijk en zijn tegelijk een rustpunt binnen de verkaveling. Het zijn eenvoudige en representatieve gebouwen met respect voor de landschappelijke kwaliteit en met discretie ten aanzien van de openbare ruimte. Het contact met de landelijke omgeving blijft bewaard.
 
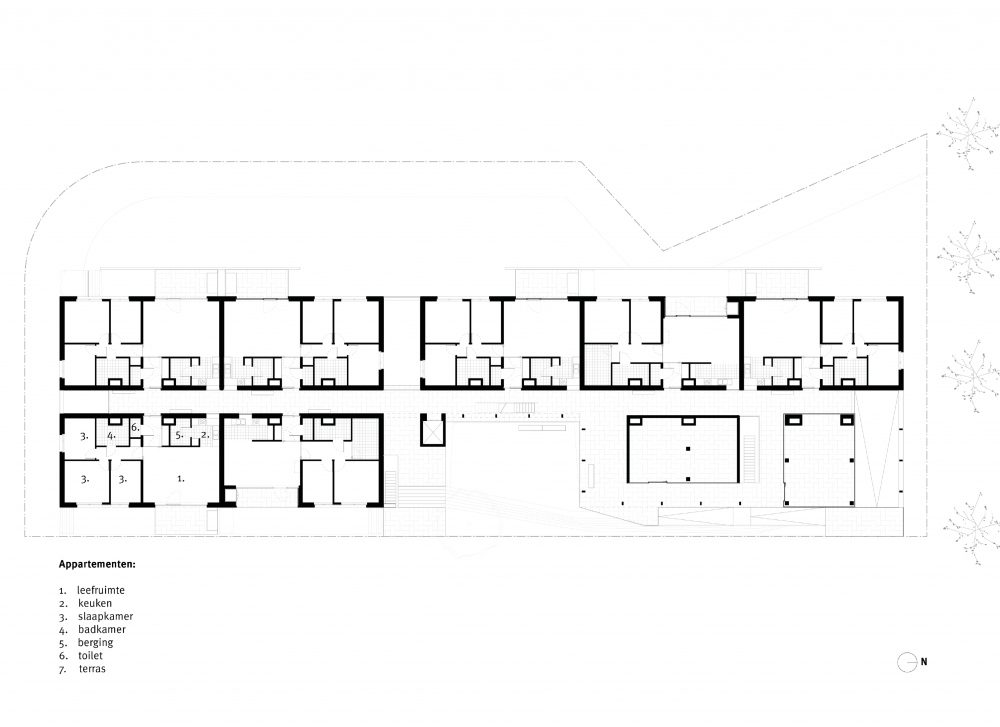
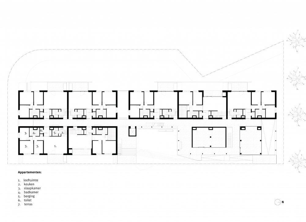
Het woonblok voor 25 appartementen is ontworpen als een doorwaadbaar geheel dat zowel van binnen als van buiten licht, lucht en zichten uitademt. De figuur kan ontleed worden als een cluster van 4 volumes langs een woonstraat en een groene inkompatio.
 
De rijwoningen krijgen door het samenbrengen de allure van het wonen in meervoud en zijn tegelijk individueel herkenbaar.  De samenhorigheid van de bewoners wordt versterkt door een verhoogde voortuinzone achter een lage wand.

programma     nieuwbouw van 7 gekoppelde ééngezinswoningen en 25 appartementen met parking
opdrachtgever     Cnuz
ligging     Molenveldstraat - Zoutleeuw
gunning     prijsvraag - laureaat
projectteam     P. Kint, S.Philippe, P.Walraet, M. Leflot, C.Sannen
adviseurs     Stubeco, RCR, Infinum
status     ontwerp 2010 - oplevering 2021
oppervlakte     gebouw 5.850 m2, omgeving 4.000 m2
budget     4,2 mln. euro excl. btw & erelonen
fotografie   A. Nullens