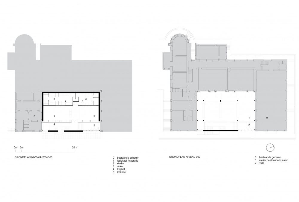
| programma | atelier beeldende kunsten | |
| opdrachtgever | Provincie Vlaams Brabant | |
| ligging | Mechelsevest, Leuven | |
| gunning | algemene offerteaanvraag - laureaat | |
| ontwerpteam | Peter Kint architecten | |
| projectteam | P.Kint, G.De Neuter | |
| adviseurs | M.Lavreysen, Moens engineering | |
| aannemer | A.Timmermans nv | |
| status | ontwerp 2000 - oplevering 2004 | |
| oppervlakte | gebouw 560 m2 | |
| budget | 0,62 mln. euro excl. btw & erelonen | |
| fotografie | G. De Neuter | |
| tentoonstelling |
2005 Belgian Building Awards 2008 Architectuurprijs Stad Leuven |
|
| publicaties |
2008 'Hedendaagse architectuur in Leuven 2004/2006' 2005 'School maken in Vlaanderen' A+193 |












