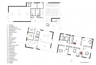
| programma | vrije basisschool met bko | |
| opdrachtgever | Scholen van Morgen - vzw Katholieke scholen Regio Noord-Waasland | |
| ligging | 't Kalf, Sint-Gillis-Waas | |
| gunning | mini-competitie - laureaat | |
| projectteam | S.Philippe, P.Kint, P.Walraet, M.Leflot, M.Dewit, H.Reynaerts, B.Derison, P.Coekaerts, N.Vancaudenberg, M. Rooman | |
| adviseurs | Studie 10 | |
| status | ontwerp 2012 - oplevering 2016 | |
| oppervlakte | gebouw 2.240 m2, omgeving 3.300 m2 | |
| budget | 3,3 mln. euro excl. btw & erelonen | |
| fotografie | A. Nullens |
















